Mẫu biệt thự đẹp mái Nhật 2 tầng hiện nay có nhiều gia chủ lựa chọn thay vì mái thái. Cùng với sự đa dạng trong thiết kế phù hợp với nhu cầu của từng gia chủ với mẫu thiết kế đa dạng mà không kém phần thẩm mỹ. Anh Vinh, khách hàng của Xây Dựng Tân Phát sau khi tìm hiểu đã liên hệ và được kiến trúc sư tư vấn mẫu nhà, anh đã lựa chọn thiết kế theo mẫu biệt thự đẹp 2 tầng hiện đại mái Nhật. Cùng chiêm ngưỡng mẫu nhà Xây Dựng Tân Phát thiết kế cho anh Vinh trong bài viết hôm nay nhé!
THÔNG TIN CHI TIẾT MẪU BIỆT THỰ 2 TẦNG MÁI NHẬT
| Chủ đầu tư | Anh Vinh |
|---|---|
| Chiều rộng mặt tiền | Mặt tiền 8m- 10m |
| Địa điểm | Tiên Lãng- Hải Phòng |
| Diện tích | Diện tích 200m2-260m2 |
| Kiểu kiến trúc, phong cách | Biệt thự hiện đại 2 tầng mái nhật |
| Loại công trình | Biệt thự |
PHỐI CẢNH 3D TOÀN BỘ MẶT NGOÀI NGÔI NHÀ
Anh Vinh sở hữu khổ đất khá rộng hình chữ nhật và muốn thiết kế 2 tầng cho 6 người. Chúng tôi đã tư vấn mẫu nhà 2 tầng mái nhật hiện đại với chút cách điệu của phào chỉ để ngôi nhà đẹp và mềm mại hơn.
Xây Dựng Tân Phát chuyên thiết kế nhà đẹp tại Hải Phòng
Ngôi nhà không chỉ mang đến vẻ đẹp thanh lịch, hiện đại mà còn đảm bảo sự tiện nghi và thoải mái cho các thành viên trong gia đình. Các không gian sống được bố trí hài hòa, tận dụng ánh sáng tự nhiên và không gian mở, tạo cảm giác thoáng đãng và gần gũi với thiên nhiên.
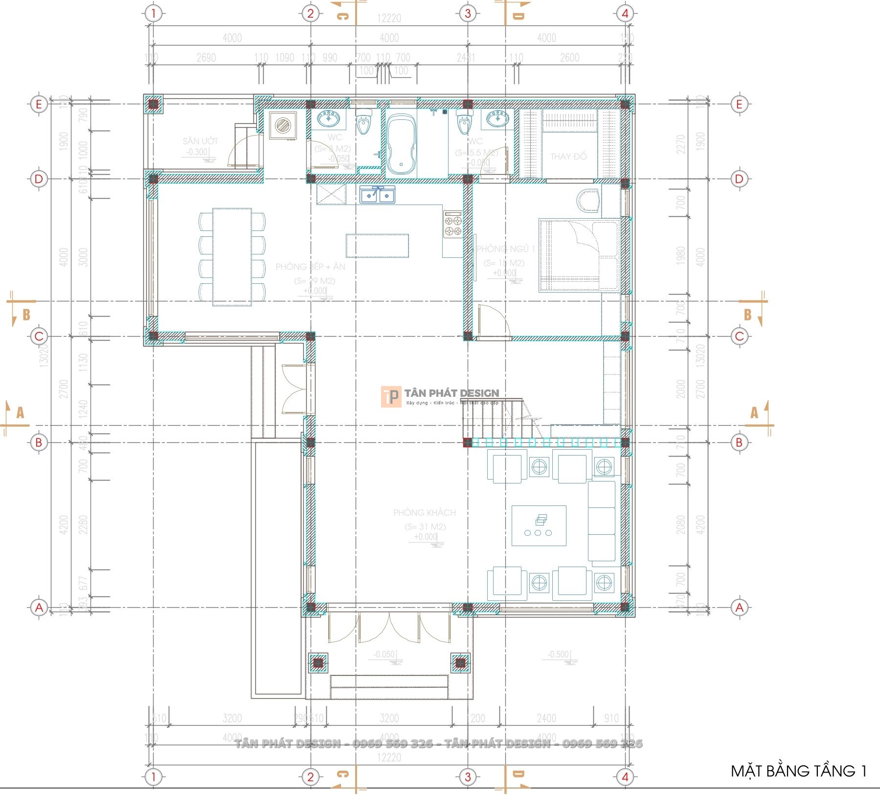
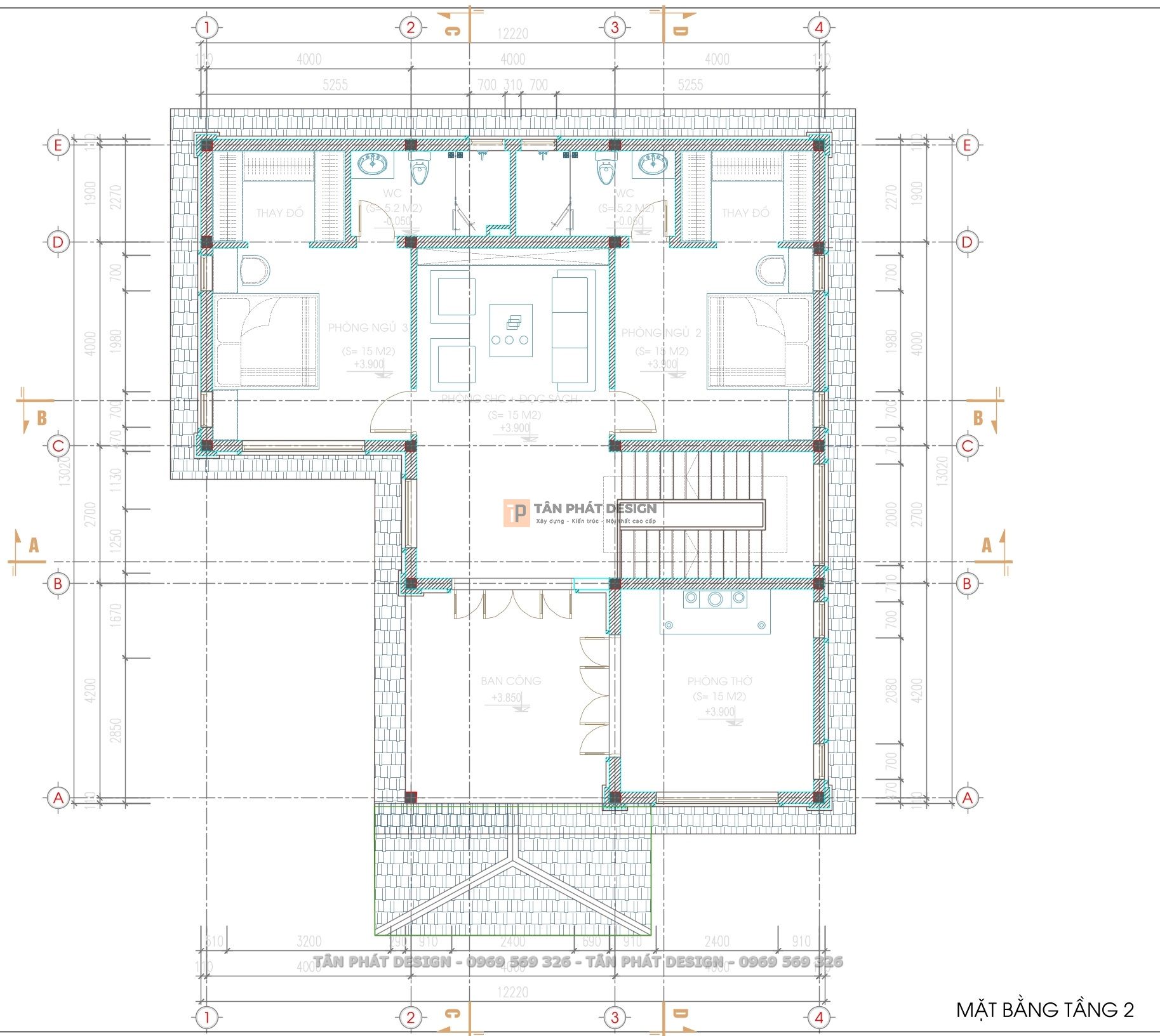
bản vẽ MẶT BẰNG CÔNG NĂNG biệt thự mái NHẬT 2 tầng Hiện Đại tại tiên lãng hải phòng
Để biết thêm thiết kế công năng của căn nhà, mời quý vị tham khảo bản vẽ đầy đủ dưới đây của Tân Phát Design.
Ngôi nhà có kết cấu gồm: 2 tầng và sân vườn rộng
Mặt bằng tổng thể:
Tầng 1:
-
- 1 phòng khách
- 1 bếp ăn
- 1 phòng ngủ
- 1 khu nhà vệ sinh
Mặt bằng tầng 1
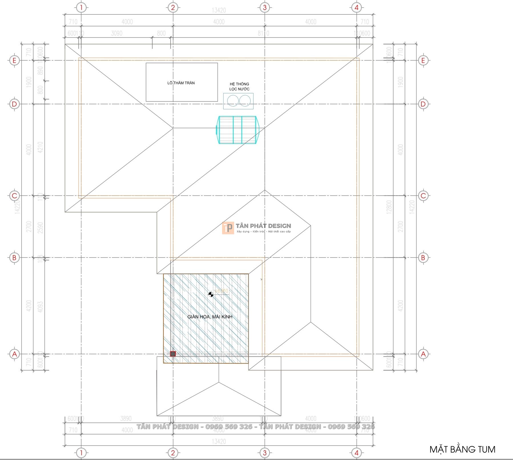
Tầng 2 bao gồm:
-
- 1 phòng SHC
- 2 phòng ngủ , 1 phòng thờ
- 1 wc chung
HÌNH ẢNH THIẾT KẾ NỘI THẤT SANG TRỌNG CỦA CÔNG TRÌNH
Kiến trúc sư Tân Phát Design không chỉ thiết kế tối ưu công năng mà còn bố trí thiết kế nội thất phù hợp với không gian của ngôi nhà.
Tầng 1 với đồ gỗ tự nhiên cao cấp của hệ vách lam ngăn giữa phòng khách và phòng bếp, tủ bếp 2 tầng đẹp mắt kết hợp với trần thạch cao tạo nên một không gian sang trọng mà thẩm mỹ.
Không những thế các KTS còn thiết kế màu gạch phù hợp với không gian ngôi nhà kết hợp với gạch trang trí màu đèn tạo độ cuốn hút ngay khi mở cửa.
Mời quý vị cùng chiêm ngưỡng những hình ảnh nội thất tầng 1 do KTS Tân Phát Design thiết kế cho nhà anh Vinh dưới đây:
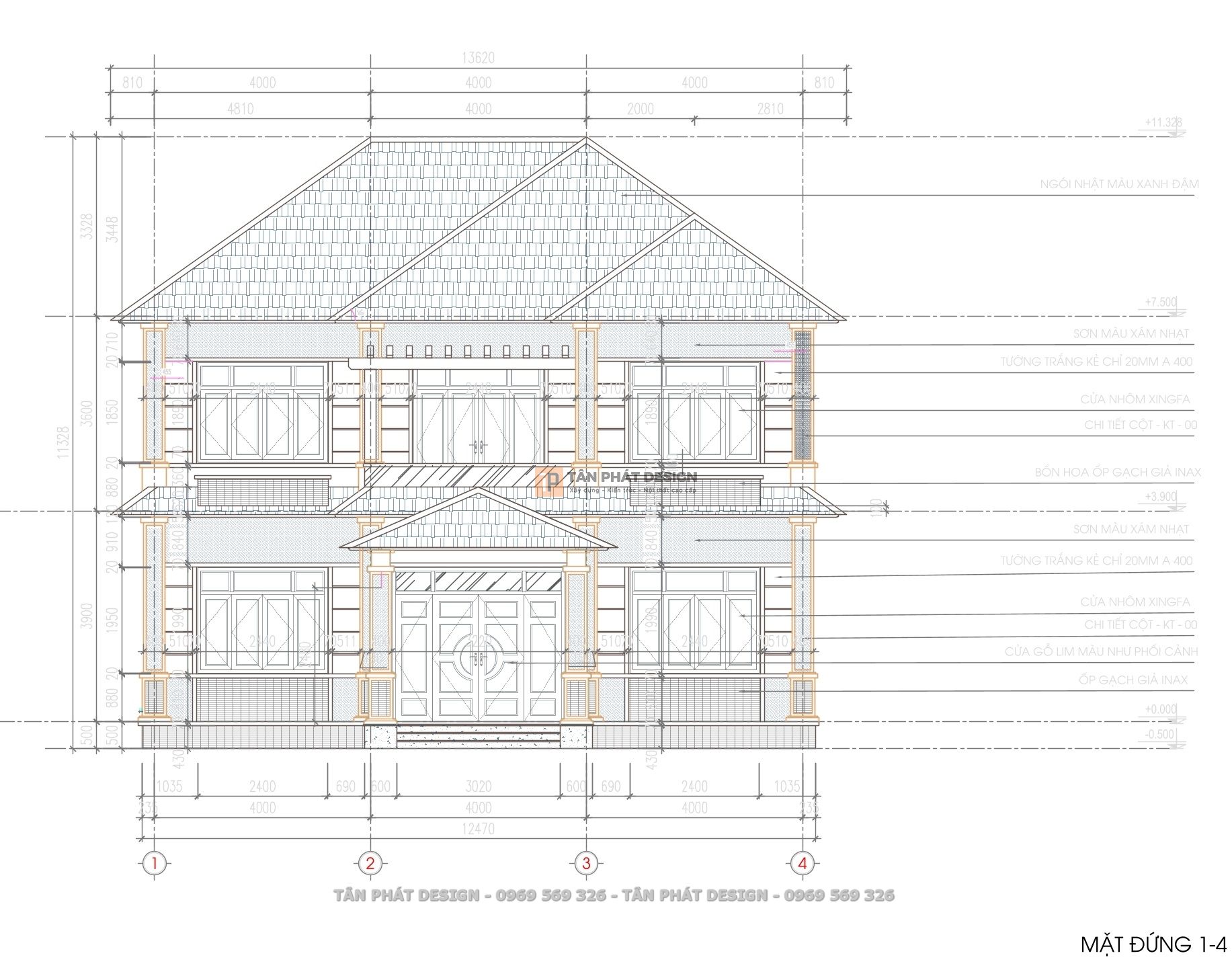
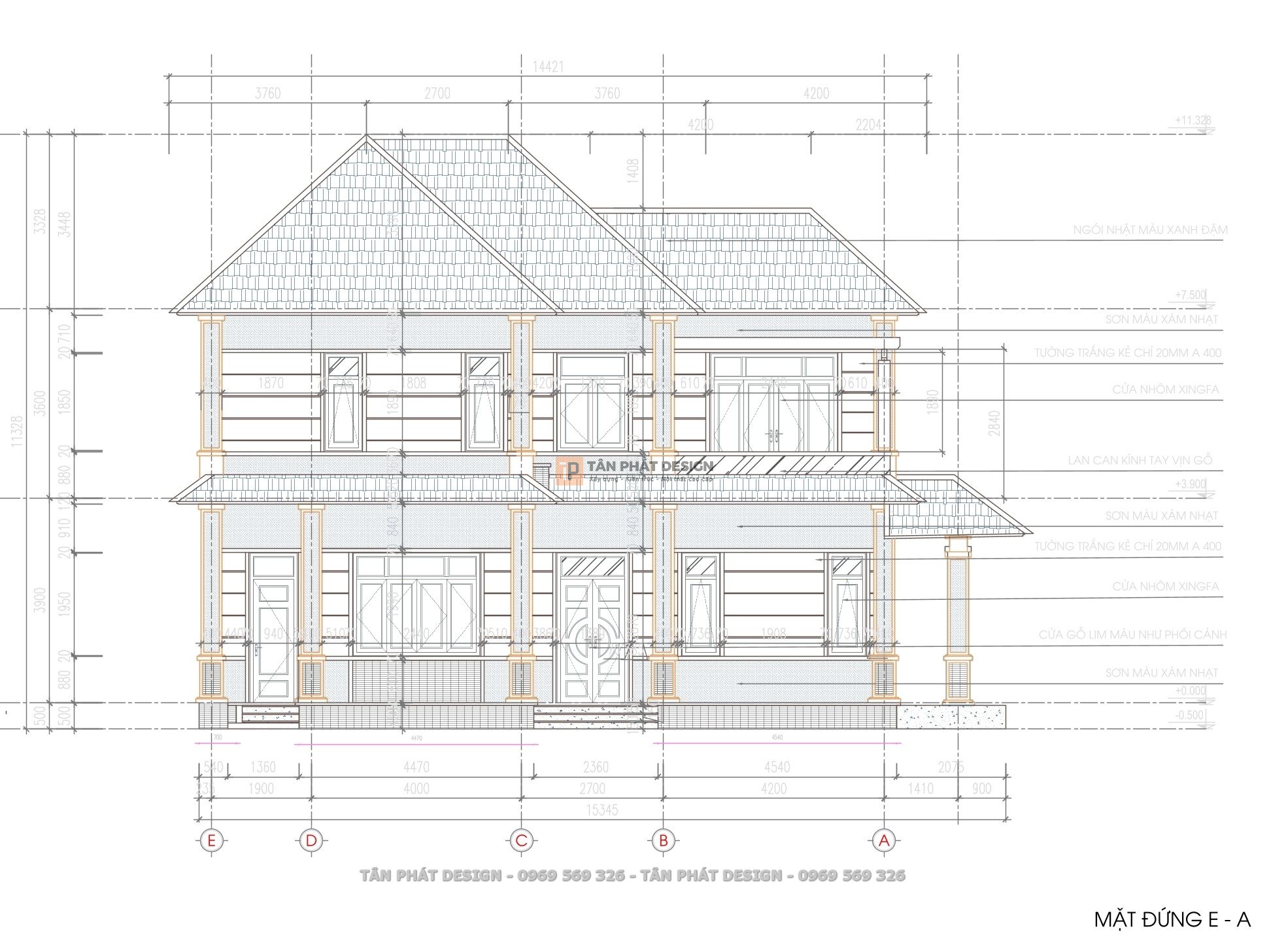
CHI TIẾT PHỐI CẢNH 3D NGÔI NHÀ MÁI NHẬT 2 TẦNG HIỆN ĐẠI TẠI TIÊN LÃNG HẢI PHÒNG
Công trình nhà 2 tầng mái Nhật hiện đại có 2 lối tiếp cận, 1 lối ở cửa chính dẫn ra phía trước ngôi nhà và 1 lối tại cửa phụ. Cùng với đó, hệ thống cửa sổ rất nhiều, đảm bảo mang đến nguồn ánh sáng tự nhiên cho căn nhà, gió trời tự nhiên tạo nên một không gian sống lý tưởng. Phần ban công nhà có giàn trang trí luôn luôn là điểm nhấn rất duyên dáng cho mọi công trình, dù công trình đó có thô cứng đến đâu thì khi thiết kế giàn hoa vào nhìn cũng sẽ thấy mềm mại, dịu dàng và lãng mạn hơn.
Mặt tiền mẫu biệt thự đẹp mái Nhật trẻ trung, thời thượng
Mặt tiền của biệt thự rộng 8m có sảnh phía trước nhà. Mặt tiền vẫn sử dụng thước đôi cột vuông phào chỉ đẹp mắt, mới lạ hơn trong sử dụng bậc tam cấp ốp đá tự nhiên đẹp mắt. Mái nhật đua ra gọn gàng kết hợp cột trang trí phào chỉ ko quá phức tạp nhưng vẫn thẩm mỹ.
Các yếu tố phong thủy được vận dụng tối đa
Các thiết kế tối giản kết hợp với cách sử dụng màu sắc độc đáo đã làm nên diện mạo trẻ trung, hút mắt và thực sự duyên dáng cho công trình. Tone trắng kết hợp xanh than nhẹ vừa tinh tế lại sang trọng, gam màu được lựa chọn còn phù hợp với mệnh của chủ nhân ngôi nhà. Các bức tường sơn trắng thông thường trước kia được sáng tạo thêm 1 tầm cao mới nhờ cách nhấn nhá với gạch thẻ ốp vừa sạch sẽ lại ấn tượng.
Toàn cảnh ngôi nhà và khu đất rộng
Mái Nhật được chủ đầu tư lựa chọn theo sở thích. Mái được giật cấp phù hợp với công năng phân chia bên trong. Hệ mái còn được sử dụng cho mái che tầng 1 để nổi bật hơn, đẹp mắt hơn. Hệ mái được thiết kế tính toán đảm bảo sự thông thoáng và bảo vệ ngôi nhà hiệu quả. Có thể nói công trình là sự kết hợp nhiều giải pháp mới phù hợp với thói quen sử dụng hiện nay của các gia đình đồng thời hợp thời cả tính thẩm mỹ. Các chi tiết được sử dụng tính toán với giá trị lâu dài về mặt thời gian.
Nội thất gỗ tự nhiên sang trọng hiện đại
Khi bước vào từ cửa chính, bạn sẽ được chào đón bởi khu vực phòng khách rộng rãi và tiện nghi. Tại đây, một bộ bàn ghế bằng gỗ được trang bị để tăng cường sự sang trọng và ấm cúng cho không gian. Tất cả các chi tiết nội thất được sắp xếp hài hòa, góp phần tạo nên một không gian sống vừa hiện đại vừa thanh lịch. Sự lựa chọn vật liệu và cách bài trí thông minh không chỉ nâng cao giá trị thẩm mỹ mà còn mang đến cảm giác thoải mái và dễ chịu cho các thành viên trong gia đình và khách đến thăm.
Thông tin liên hệ và tư vấn mẫu biệt thự đẹp
Công ty Xây Dựng Tân Phát là một trong những Công ty đi đầu trong lĩnh vực thiết kế và thi công trọn gói công trình nhà dân tại Hải Phòng, uy tín chuyên nghiệp có trên 5 năm kinh nghiệm có đội ngũ KTS giàu kinh nghiệm. Chuyên thiết kế nhà đẹp, công trình thi công đảm bảo chất lượng, bàn giao đúng tiến độ. Hãy đến với chúng tôi để sở hữu ngôi nhà đẹp của riêng bạn không chỉ ở mẫu biệt thự hiện đại, nhà phố sang trọng mà còn ở mọi phong cách.
Để được tư vấn thiết kế nhà đẹp và thi công uy tín, đảm bảo hiện thực hóa đúng bản vẽ và tiến độ, mời quý khách hàng liên hệ: Hotline/Zalo: 0969 569 326








